ZpětÚvodNemovitosti Plzeň-jihRodinné domy Plzeň-jihProdej rodinné domy Plzeň-jihProdej samostatné rodinné domy Plzeň-jihVenkovská chalupa v Chlumech – klidné místo k bydlení i rekreaci!
Venkovská chalupa v Chlumech – klidné místo k bydlení i rekreaci!
Záložky
Hledáte místo, kde si odpočinete od shonu města, užijete si klid venkovského života a přitom budete mít vše potřebné na dosah? Pak je tahle chalupa v obci Chlumy ideálním řešením právě pro Vás!
Popis nemovitosti
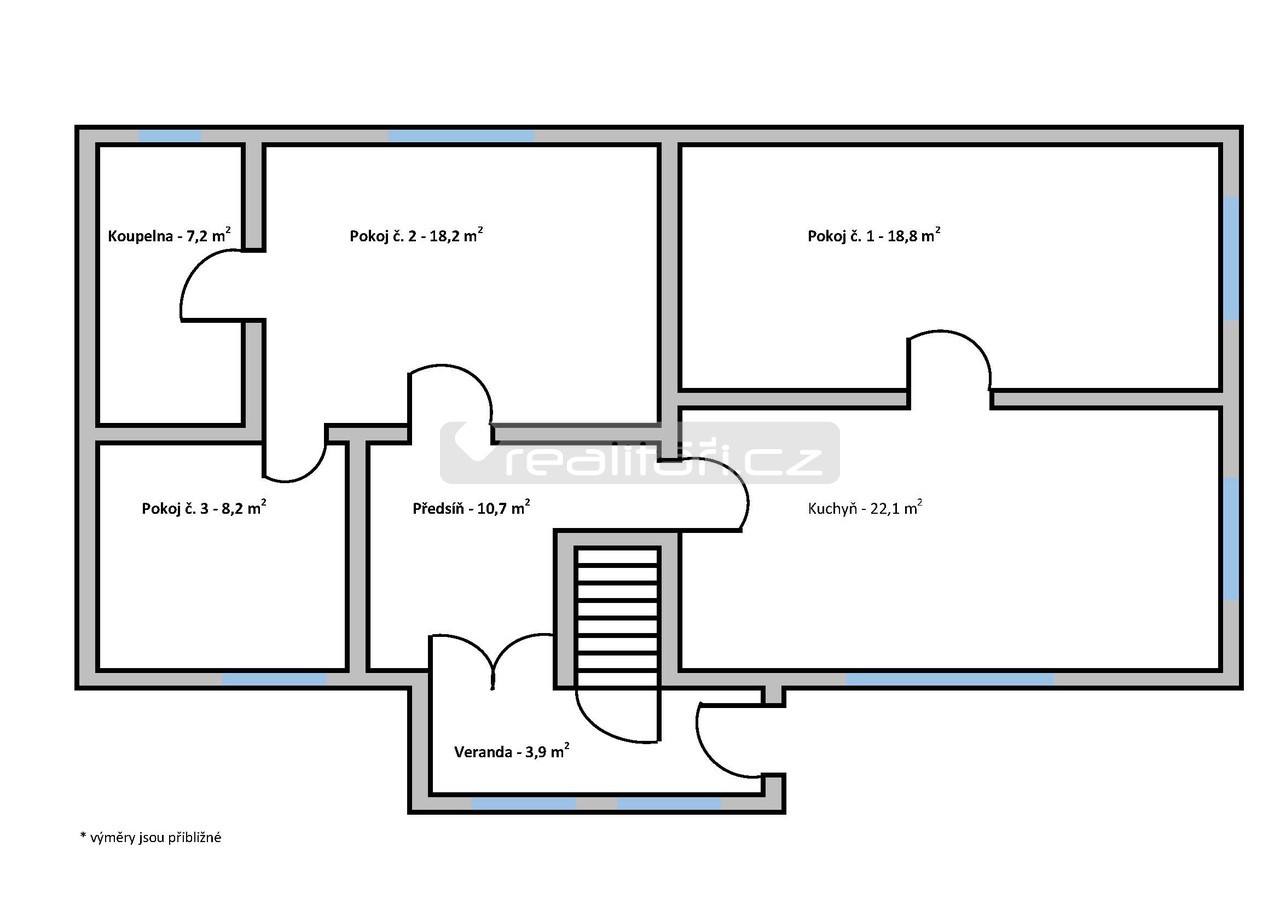
Domek, situovaný na mírném návrší s orientací na jih a jihozápad, Vám nabídne nejen krásný výhled do okolí, ale i dostatek světla po celý den. Svoji atmosféru si zachoval díky původním prvkům, jako jsou kachlová kamna v kuchyni i v jednom z pokojů, dřevěné podlahy či prostorná půda s možností rozšíř...
| Cena: | 1.850.000 Kč(za nemovitost)včetně právního servisu |
|---|---|
| Lokalita: | Chlumy, Plzeň-jih, Plzeňský |
| Stav nabídky: | aktuální |
| Číslo: | 986 |
| Typ reality: | Samostatné rodinné domy - Rodinné domy |
| Plocha: | 872 m2 |
Kontakt na makléře
Vlastnosti nemovitosti
| Plocha sklep: | 4 m2 |
|---|---|
| Užitná plocha: | 90 m2 |
| Zastavěná plocha: | 280 m2 |
| Plocha pozemku: | 592 |
| Technologie výstavby: | smíšená |
|---|---|
| Stav objektu: | před rekonstrukcí |
| Poloha objektu: | samostatný |
| Umístění objektu: | klidná část obce |
| Celkový počet podlaží: | 1 |
| Počet pokojů: | 4 pokoje |
| Sklep: | Ano |
|---|
| Elektro 230V: | Ano |
|---|---|
| Elektro 400V: | Ano |
| Vlastní vodní zdroj: | Ano |
| Studna: | Ano |
| Kanalizace: | Ano |
| Topení lokální: | Ano |
| Topení tuhá paliva: | Ano |
| Autobus: | Ano |
|---|
| Třída energetické náročnosti budovy: | G - Mimořádně nehospodárná |
|---|
Doplňující obsah
Rychlý kontakt
Realitáři.CZ s.r.o.
náměstí Republiky 202/28
301 00 Plzeň
Tel.: +420 373 036 333
Gsm: +420 775 720 920
E-mail: nasi@realitari.cz
© 2026, Realitáři Plzeň SE – všechna práva vyhrazena
Prohlášení o přístupnosti | Ochrana osobních údajů | Mapa stránek
Realitní software dodává eBRÁNA | Software a informační systém pro realitní kanceláře REALBrána | Nabídka nemovitostí RB Reality














